Larchwood
旺角洋松街62號
,旺角

宏安地產


【與利遊新盤】中九龍重建項目,Larchwood享「離地」優勢 旺角太子一帶係九龍區核心地段之一,區內重...
1/28


























 x 270px (h).jpg?width=240&height=135&mode=crop&autorotate=true)


$450.9萬起
預計關鍵日期
30/04/2024
單位數目
187
座數
1
鄰近地鐵
地鐵太子站
發展商
宏安地產
官方網站
管理公司
高達管理有限公司
賣方 / 賣方的控權公司
賣方:泰鏗有限公司 | 賣方的控權公司:More Action Investments Limited, Sparkle Hope Limited, Miracle Cheer Limited, 宏安地產有限公司, Earnest Spot Limited, Wang On Enterprises (BVI) Limited, Wang On Group Limited
校網
小學校網32
校區
中學油尖旺區
銷售地點
尖沙咀天文臺道8號1樓
參觀地點
現樓
廣告日期
06/11/2025
物業編號
1002399
銷售熱線
Larchwood 專業代理


徐錦榮 Roy Tsui
聯席董事(E-402560)


邱家仁 Roy Yau
高級聯席董事(E-328809)

盧振群 Kenny Lo
聯席董事(E-297103)

伍展鴻 Patrick Ng
市務經理(S-257837)


黃偉倫 Wylun Wong
高級聯席董事(E-398446)


王馗維 Eric Wong
分區經理(E-286508)

陳子謙 Bosco Chan
助理分區經理(E-476598)


張德敬 Kon Cheung
助理分區經理(E-024849)


顏梓峻 Javis Ngan
經理(E-491431)


鄭嘉榮 Peter Cheng
助理分區經理(E-056116)

阮好珍 Maggie Yuen
聯席董事(E-034664)

何柱霖 Anthony Ho
高級聯席董事(E-492884)


郭永峰 Ryan Kwok
分區董事(E-468090)


吳家濠 Ray Ng
高級分區董事(E-471623)

林海鈞 Lamken Lam
高級聯席董事(E-241355)


石浩揚 Anson Shek
經理(E-492850)


蔡向善 Brian Choi
助理分區董事(E-063510)

余文偉 Eric Yu
高級分區董事(E-228225)


陳德銘 Thomas Chan
市務經理(S-037675)


梁偉傑 Samson Leung
高級經理(E-284138)

李啟昌 Eddie Lee
高級聯席董事(E-069963)


謝家華 Thomas Tse
助理分區經理(E-048456)


許如 Amy Hui
首席聯席董事(E-472704)

張國峰 Sam Cheung
聯席董事(E-067099)


簡瀚沂 Esmond Kan
高級分區董事(E-015328)


何靜波 Karson Ho
高級區域董事(E-177743)


馮樹勳 John Fung
營業董事(E-060410)


霍志遠 Gary Fok
聯席董事(E-421354)


陳炳南 Bosco Chan
高級聯席董事(E-457580)


屈慧妍 Maggie Wat
聯席董事(E-006579)

馮爾朗 Long Fung
高級經理(E-401851)


黃英豪 Kelvin Wong
高級聯席董事(E-044021)

袁浩文 Man Yuen
市務經理(S-216073)


鄭樹輝 Rick Chang
聯席董事(E-233942)


郭榮輝 Louis Kwok
聯席董事(E-495473)
Larchwood 銷售狀態
即將發售
首份價單日期24/08/2022
意向登記
首次出售日期03/12/2022
出售中
預計關鍵日期30/04/2024
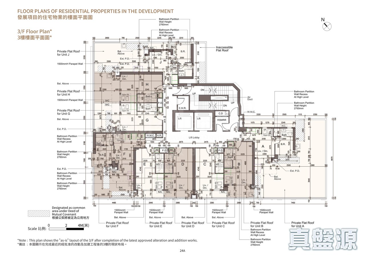
Larchwood 平面圖
座數
樓層

Google地圖
一手住宅物業銷售資訊網
https://www.srpe.gov.hk/本公司已取得賣方/賣方代理發出的廣告同意書。
免責聲明: 本網站及相關連結所提供有關該項目的物業資料(簡稱 “項目資訊”)是來自一手住宅物業銷售資訊網、賣方的官方互聯網站及/或新聞資訊網,資料僅供參考。基於賣方不時更新和發出最新的項目資訊,本公司並不能保證有關項目資訊能與官方網站同步更新和項目資訊的完整性或準確性。閣下在向該發展項目的賣方提交任何認購意向或要約前,應自行到該發展項目的官方網站查証,以取得最新的資訊及有關該項目的詳情請參閱售樓說明書。本公司僅此聲明本公司不會因該發展項目的買家或任何人使用或倚賴本網站的項目資訊而蒙受任何損失或損害而負上任何責任或賠償。














