洪水橋新盤|滙都新盤攻略懶人包|價單呎價、平面圖、生活配套 (不斷更新)
由泛海國際集團發展的滙都、位於洪水橋洪安里1號,當中分兩期發展,合共提供 1,025 個單位,主打兩房單位,而項目更坐擁三鐵優勢。House730幫你緊貼追蹤一手新盤行情,不斷更新滙都價單分析、平面圖、示範單位、生活配套、同區樓盤比較。House730由搵樓至買樓為你一手包辦。
洪水橋滙都新盤攻略懶人包
|
本文目錄: |
洪水橋滙都價單及呎價
‧ 首批價單
滙都I首批推125伙單位,戶型涵蓋一至三房,其中1房單位佔26伙,兩房戶佔96伙,三房估2伙,及1伙特色單位,實用面積由326平方呎至498平方呎,最低折實呎價為12,688元。項目首批單位市值8.3億,整批單位折實平均呎價為13,747元,價單定價由512.7至820.9萬元,價單呎價介乎14,754元至17,537元。
首批單位最低售價單位為第3座2樓A03單位,實用面積326平方呎,屬1房間隔,折實價為440.92萬元,折實呎價為13,525元。至於呎價最低單位則為第3座3樓B12單位,實用面積449平方呎,屬2房間隔,折實價為569.7萬元,折實呎價為12,688元。
| 按此即睇洪水橋滙都樓盤簡介:位置、入伙日期、單位面積、間隔、層數 |
洪水橋滙都折扣
-
首置及換樓客折扣
買方可獲 2%售價折扣優惠
-
鐵路沿線優惠
買方可獲 2%售價折扣優惠。
-
高端人才及專業人士優惠
買方可獲 1%售價折扣優惠。
-
印花稅折扣優惠
買方可獲 3%售價折扣優惠。
| 即用按揭計算機計計供款 |
| 想知道入市成本?有咩供款計劃啱自己?即按即答你 |
洪水橋滙都付款計劃
「120 天現金付款計劃」
1、相等於樓價 5%之臨時訂金須於買方簽署臨時買賣合約時繳付,買方須於簽署臨時買賣合約的日期後 5 個工作日內簽署正式買賣合約(「買賣合約」)。
2、相等於樓價 5%之加付訂金須於買方簽署臨時合約後 30 天內繳付。
3、樓價 90%即樓價餘款須於買方簽署臨時合約後 120 天內繳付。
「180 天現金付款計劃」
1、相等於樓價 5%之臨時訂金須於買方簽署臨時買賣合約時繳付,買方須於簽署臨時買賣合約的日期後 5 個工作日內簽署正式買賣合約(「買賣合約」)。
2、相等於樓價 5%之加付訂金須於買方簽署臨時合約後 30 天內繳付。
3、樓價 90%即樓價餘款須於買方簽署臨時合約後 180 天內繳付。
「靈活建築期付款計劃」
1、相等於樓價 5%之臨時訂金須於買方簽署臨時買賣合約時繳付,買方須於簽署臨時買賣合約的日期後 5 個工作日內簽署正式買賣合約(「買賣合約」 )。
2、相等於樓價 5%之加付訂金須於買方簽署臨時合約後 60 天內繳付。
3、樓價 90%即樓價餘款,買方須於賣方就其有能力將物業有效地轉讓予買方一事向買方發出書面通知的日期後的 14 天內繳付。
「輕鬆置業建築期付款計劃」
1、相等於樓價 5%之臨時訂金須於買方簽署臨時買賣合約時繳付,買方須於簽署臨時買賣合約的日期後 5 個工作日內簽署正式買賣合約(「買賣合約」 )。
2、相等於樓價 1%之加付訂金須於買方簽署臨時合約後 60 天內繳付。
3、相等於樓價 1%之加付訂金須於買方簽署臨時合約後 90 天內繳付。
4、相等於樓價 1%之加付訂金須於買方簽署臨時合約後 180 天內繳付。
5、相等於樓價 1%之加付訂金須於買方簽署臨時合約後 270 天內繳付。
6、相等於樓價 1%之加付訂金須於買方簽署臨時合約後 360 天內繳付。
7、樓價 90%即樓價餘款,買方須於賣方就其有能力將物業有效地轉讓予買方一事向買方發出書面通知的日期後的 14 天內繳付。
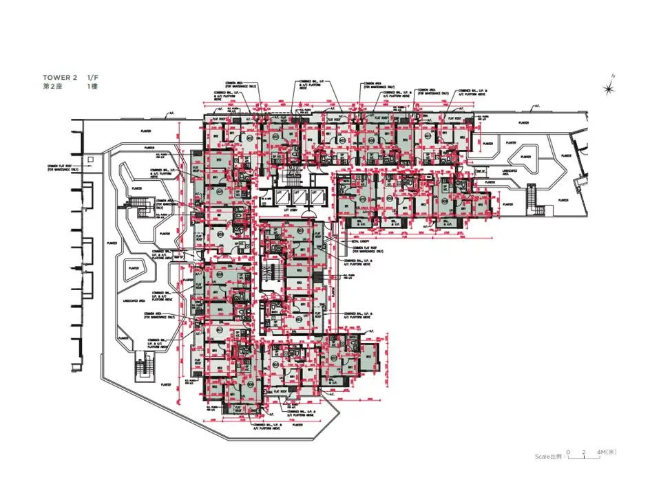
洪水橋滙都平面圖
| 按此即睇更多洪水橋滙都:樓盤平面圖、物業外貌、周邊景觀 |

洪水橋滙都1座1樓平面圖








洪水橋滙都示範單位
尚待公佈
| 想快人一步了解更多洪水橋滙都 I資訊,按此即問即答你 |
洪水橋滙都生活配套
洪水橋滙都住客會所總面積約30,000呎,設有游泳池、健身室、宴會廳及戶外公園等等。
交通方面,項目鄰近輕鐵洪水橋站及巴士站,路程約5至7分鐘,方便來往屯門、元朗市中心及天水圍。附近亦是青山公路洪水橋段,設有多條巴士路線來往灣仔及機場等地。
生活配套方面,樓盤設有3.4萬平方呎商場,附近亦是洪福商場、翠珊園及洪水橋大街等民生商戶,日常消費非常便利。住客亦可到達屏柏里公園休憩。
校網方面,匯都小學校網為70校網,中學校網為屯門區。
洪水橋滙都樓盤資料
洪水橋匯都位於洪水橋洪安里1號,發展商為泛海集團,項目分兩期發展,預計先推一期。整個項目提供1,025伙,一期共有3座,並設有623伙單位;而第二期則有2座,設有402伙單位。戶型涵蓋1至3房間隔,以2房戶型為主,佔全盤約7成,實用面積約321至522平方呎。關鍵日期為2025年6月30日。
洪水橋匯都預計入伙日期為2025年6月,屬72小學校網;中學為元朗區。
| 物業名稱: | 匯都 |
| 所在地區 | 元朗 |
| 中文地址: | 洪水橋洪安里1號 |
| 英文地址: | 1 Hung On Lane |
| 大廈座數: | 5座 |
| 大廈層數: |
13層至14層 |
| 單位總數: | 1,025伙 |
| 樓層高度: | 尚待公佈 |
| 實用面積: | 321至522平方呎 |
| 單位間隔: |
一至三房戶 |
| 發展商: | 泛海集團 |
| 管理公司: | 尚待公佈 |
| 關鍵日期: |
2025年6月30日 |
| 校網: | 72小學校網;中學為元朗區 |
洪水橋滙都同區樓盤比較
一手樓盤比較
| 樓盤 | 首批平均呎價(元) | 首批最平售價 | 推出月份/年份 |
| 飛揚2期 | 12,509 | 306.9萬元 | 3/2023 |
| 飛揚1期 | 15,050 | 437.2萬元 | 6/2022 |
| 15,419 | 318萬元 | 10/2019 | |
| 恆大‧珺瓏灣第2期 | 16,304 | 417.3萬元 | 3/2020 |
| NOVO LAND 第2A期 | 13,598 | 335萬元 | 5/2024 |
| NOVO LAND 第2B期 | 13,288 | 425.5萬元 | 5/2024 |
| #LYOS | 16,868 | 345.8萬元 | 9/2023 |
| 按此即睇更多新界西一手樓盤 |
資料來源: House730
