啟德THE HENLEY I平面圖分析 1房都有衣帽間!3房弧形窗兼嵌入式露台!

啟德沐泰街7號全新盤THE HENLEY第1期THE HENLEY I樓書已公布,THE HENLEY I平面圖已曝光,涉及479伙。戶型開放式至3房單位,實用面積186至1350平方呎。地產站為各位讀者分析一下,THE HENLEY I各單位的平面圖及布局!
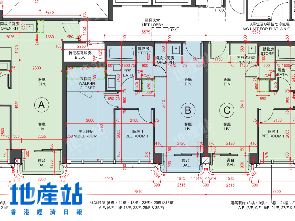
【THE HENLEY I第2座】
THE HENLEY I第2座住宅特色單位不多,絕大部分標準單位,今次睇下第2座2至39樓標準單位集中地,1層9伙設計,共享4部升降機,戶型介乎1房至3房單位。
A室889平方呎,屬全層最大單位,3房(連套房)及工作間連廁開則,屬於單邊單位。入屋小玄關及正對孺樓附送櫃,不會直衝大廳。開放式廚房分布兩邊,末端有工作間連廁。大廳長約6.4米,闊約2.8米,外連露台,經走廊連接其他空間,睡房1及睡房2空間一樣,長約2.8米及闊約2.1米,全屋最大賣點是套房,極大弧形窗,可增採光及賞景,惟要考慮床具擺位,套房內有衣帽間,主人浴室同時備有淋浴間及浴缸,雖然沒有窗戶,但另一邊有門連接梯形工作平台。
B至D室單位面積546至550平方呎,清一色西南方,B及C室開則為左右相反,入屋為長廳設計,開放式廚房比鄰大門,旁邊則有小儲物室,浴室不設窗戶但採浴缸設計,配一細一大睡房,主人睡房內有長1.4米及闊2.1米的衣帽間;D室開則亦相當近似,惟明顯分別在於大門不會直衝大廳,而浴室設窗戶。
E室696平方呎面向西北方,不設玄關,長廳設計,採「嵌入式露台」,睡房1窗戶配合外牆流綫型設計,主人睡房附連工作平台,單位浴室設窗戶面向天井,睡房2設於大廳另一邊,窗戶同樣配合外牆流綫型呈弧形設計。
F室長廳設計連接露台,開放式廚房L形工作枱,經走廊連接一細一大睡房,主人房同樣內設衣帽間,採弧形窗戶設計;G及H室379至380平方呎1房(連套房)間隔,長廳設計連露台,以趟門分布睡房,戶內有衣帽間及浴室;J室417至418平方呎,大門不會直衝大廳,睡房與廳區以牆身分隔,睡房內有浴室及衣帽間,浴室淋浴間設計並有窗戶。
| THE HENLEY I第2座2至39樓標準單位 | |||
| 單位 | 實用面積(平方呎) | 戶型 | 方向 |
| 2座A室 | 889 | 3房(連套房)及工作間連廁 | 西南及西北方 |
| 2座B室 | 550 | 2房連儲物室 | 西南方 |
| 2座C室 | 550 | 2房連儲物室 | 西南方 |
| 2座D室 | 546 | 2房連儲物室 | 西南方 |
| 2座E室 | 696 | 3房連儲物室 | 西北方 |
| 2座F室 | 505 | 2房 | 東北方 |
| 2座G室 | 380 | 1房(連套房) | 東北方 |
| 2座H室 | 379 | 1房(連套房) | 東北方 |
| 2座J室 | 417至418 | 1房(連套房) | 東北方 |
【THE HENLEY I低座A至C座】
THE HENLEY I低座A座、低座B座、低座C座布局及開則一樣,標準單位集中2至6樓,1層8伙共享2部升降機。
A至C室單位同向西南方,望內園,當中A室及C室320及321平方呎,開則相似,入屋長廳長約5米及闊2米,L形開放式廚房設計,1房長約3.3米及闊約2.25米,內有浴室;B室面積296平方呎,非套房設計,玄關位一邊為開放式廚房,另一邊為浴室,廳區呈方形,比鄰為睡房。
D室331平方呎單邊位,開放式廚房及浴室置於一左一右,方廳設計連接露台,比鄰屬睡房,設有通風窗;E及F室同為302平方呎,長形開放式廚房,廳區方形,睡房置於一邊;G及H室屬開放式單位,基本上布局開則及面積,屬於E及F室睡房以內部分,H室則額外多一個側窗。
| THE HENLEY I低座A至C座2至6樓標準單位 | |||
| 單位 | 實用面積(平方呎) | 戶型 | 方向 |
| 低座A至C座A室 | 320 | 1房(連套房) | 西南方 |
| 低座A至C座B室 | 296 | 1房 | 西南方 |
| 低座A至C座C室 | 321 | 1房(連套房) | 西南方 |
| 低座A至C座D室 | 331 | 1房(連套房) | 東北方 |
| 低座A至C座E室 | 302 | 1房 | 東北方 |
| 低座A至C座F室 | 302 | 1房 | 東北方 |
| 低座A至C座G室 | 208 | 開放式 | 東北方 |
| 低座A至C座H室 | 216 | 開放式 | 東北方 |
【THE HENLEY I低座D座】
THE HENLEY I低座D座標準單位集中2至6樓,1層8伙共享2部升降機。A至C室望西南方,A及C室開則似面積近,1房(連套房)間隔,入屋旁為L形開放式廚房,廳區長5米及闊2米,睡房亦長形,浴室以趟門設計;B室274平方呎,玄關一左一右為開放式廚房及浴室,睡房長3.1米及闊2.25米。
D室玄關位較大,一邊L形開放式廚房,一邊浴室設計,方廳旁為長形睡房;E室及F室入屋後左右為開放式廚房及浴室,廳區方形連接露台,睡房長2.9米及2.25米;G室開放式單位,面積207平方呎,屬於F室扣除睡房後的屋則;H室321平方呎1房,屬於低座最有特色單位,睡房弧形窗,長約3.52米,雖然窗戶較特色,但會限制床具擺位。
| THE HENLEY I低座B座2至6樓標準單位 | |||
| 單位 | 實用面積(平方呎) | 戶型 | 方向 |
| 低座D座A室 | 298 | 1房(連套房) | 西南方 |
| 低座D座B室 | 274 | 1房 | 西南方 |
| 低座D座C室 | 299 | 1房(連套房) | 西南方 |
| 低座D座D室 | 331 | 1房(連套房) | 東北方 |
| 低座D座E室 | 302 | 1房 | 東北方 |
| 低座D座F室 | 299 | 1房 | 東北方 |
| 低座D座G室 | 207 | 開放式 | 東北方 |
| 低座D座H室 | 321 | 1房 | 東北方 |
資料來源:香港經濟日報 地產站




































