康城新盤|海瑅灣I 新盤攻略懶人包(不斷更新)

由信和置業、嘉里建設、嘉華國際、招商局及港鐵共同發展的將軍澳日出康城海瑅灣,項目共分兩期發展,包括第13A期及第13B期。第13A期名為海瑅灣I,提供1,266伙,實用面積由323至1,716方呎,預計關鍵日期為2027年6月30日。House730幫你緊貼一手新盤行情,不斷更新海瑅灣I價單分析、平面圖、示範單位及生活配套資訊,並比較同區樓盤。由搵樓至買樓,House730為你一手包辦。
樓盤資料
海瑅灣I位於將軍澳康城路1號,屬港鐵康城站上蓋最後一期住宅項目。項目分兩期發展,第13A期名為海瑅灣I,設有兩座,第1座分為1A及1B座,第2座分為2A及2B座,合共1,266伙,實用面積由323至1,716平方呎,預計2027年6月30日落成。
間隔多元化
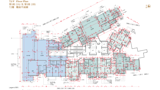
海瑅灣I共建4座住宅,間隔由一房至四房不等。一房單位54伙,實用面積358至360平方呎;整個項目以兩房為主,佔960伙,實用面積451至615平方呎,佔全盤約76%。三房單位設開放式廚房或梗廚,實用面積628至891平方呎。當中三房一套連工作間戶型分布於第1A座A及B單位,實用面積分別為891及855平方呎,最大特色是客飯廳、主人套房及部分睡房均享將軍澳海灣海景,客飯廳連接46平方呎露台及工作平台。四房單位名為海瑅天 LE SKY,實用面積1,154平方呎,屬雙套房連工作間及洗手間設計,位於海瑅灣I第1座(1A)極高層A單位,全數14伙,均位於56樓或以上。客飯廳面積逾320平方呎,長逾7.4米,連接46平方呎露台。主人睡房設有曲尺大窗並連工作平台,單位擁有270度海景,客廳、主人套房及各睡房均可眺望港島東及將軍澳海灣。另設35伙特色戶,包括19伙連平台單位(實用面積323至1,138平方呎)、12伙連天台單位(345至569平方呎),以及4伙相連連天台單位(952至1,716平方呎)。
| 名稱: | 海瑅灣I |
| 所在地區 | 將軍澳 |
| 地 址: | 康城路1號 |
| 大廈座數: | 2座(1A、1B座;2A座,2B座) |
| 大廈層數: | 6樓至72樓(共63層) |
| 單位總數: | 1,266伙 |
| 樓層高度: | 分層單位3.15米;72樓特色戶4米 |
| 實用面積: | 323至1,716平方呎 |
| 單位間隔: | 1房至4房 |
| 發展商: | 信和置業/嘉里建設/嘉華國際/招商置地/港鐵 |
| 管理公司: | 港鐵物業管理有限公司 |
| 關鍵日期: | 2027年6月30日 |
| 校網: | 95小學校網,中學為西貢區 |
價單
海瑅灣 I 首批推出254伙,全數為標準單位,折實平均呎價15,588元。最平一房戶折實價約572.6萬元。首批單位包括11伙一房連開放式廚房單位及243伙兩房單位。是次設有15%折扣,首批折實價由572.6萬至930.41萬元,折實呎價介乎14,697至16,735元。最平單位為1A座7樓E室,一房間隔,實用面積360平方呎,折實價572.6萬元,實用呎價15,904元。最低呎價單位為1A座7樓D室,實用面積457平方呎,兩房間隔,折實價671.7萬元,實用呎價14,697元。另有254伙以招標形式發售,單位分布於1A、1B、2A及2B座,主打3房及4房戶型。
示範單位




住客會所
海瑅灣 I設有佔地8.3萬方呎的臨海度假式園林會所,名為CLUB MIRABELLE,會所設5大主題空間,包括度假水景區、健體會所、海池宴會廳、兒童會所及臨海休閒區。其中,度假水景區設10大設施,包括日出康城期數中最長50米臨海無邊際泳池及25米室內恆溫泳池,室外及室內泳池連成一線更長達75米。室內設有臨海盛聚廳,提供池畔休閒空間,一邊共聚,一邊欣賞日落。其他設施包括兒童嬉水池、海池雅座及靜沁園等。

24小時健身室
健體會所佔地逾4,700平方呎,設24小時開放的臨海健身室,內設私人獨立空間臨海健體貴賓室 ,健身器材包括帆船訓練器及水阻划船機。愛好運動的住戶,可留意健體會所還設有全港罕有的室內網球場/多元運動場 ,可靈活化作匹克球、籃球或羽毛球場。
臨海宴會廳
海池宴會廳設有多個宴會廳,包括臨海盛宴廳,提供落地大玻璃將廣闊海灣美景引進室內。主廚宴會廳廚具兼備,宴客住戶可即席掌廚。除宴會廳外,提供多項燒烤設施,如臨海燒烤盛會、燒烤盛薈及燒烤園,盡享燒烤樂趣。兒童會所室內外面積逾3,800平方呎,設有兒童劍擊館 。另外有以奇幻海洋為主題的室內遊樂場童趣堡壘 ,猶如置身海底冒險世界。童藝學院設有陶藝及烘焙工坊。大型室外遊樂場童趣森林,配置大型攀爬設施。除了遊樂設施,兒童會所亦設有宴會廳樂聚派對廳 ,適合舉辦派對及慶祝活動



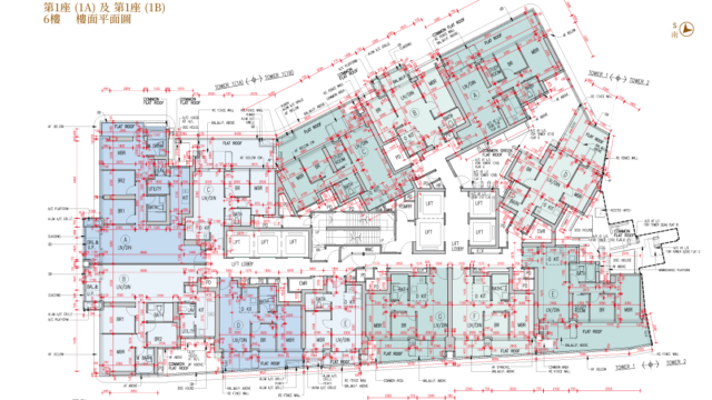
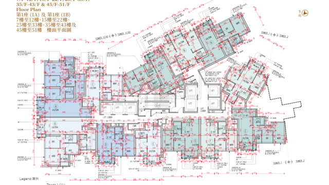
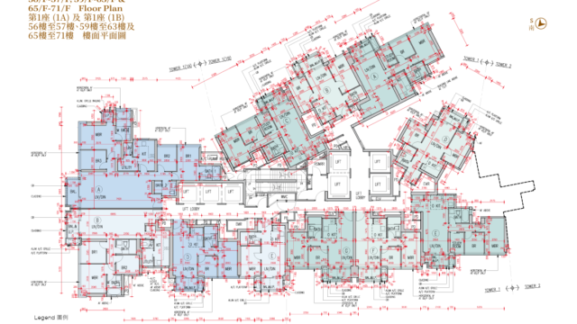
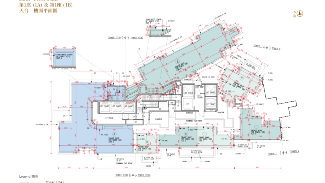
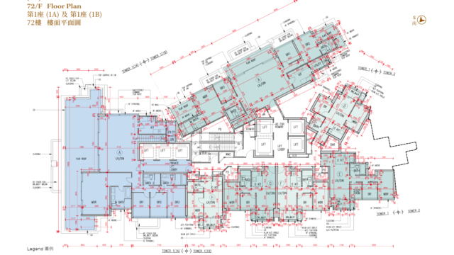
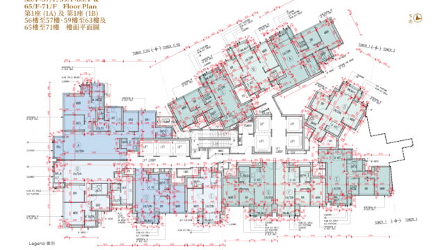
1A及1B座平面圖











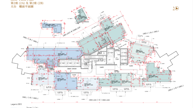
2A及2B座平面圖










社區配套
日出康城第13期項目海瑅灣臨海而建,為港鐵沿線的大型私人屋苑,區內社區配套日漸成熟。項目緊鄰港鐵康城站,經24小時有蓋行人通道直達車站及大型商場,乘搭港鐵約二十多分鐘可往來港島東及九龍東主要商業區,亦設有巴士及專線小巴路線接駁觀塘、藍田及市區多個地點,配合中九龍幹線通車後,交通更趨方便。購物及消閒方面,The LOHAS 康城商場提供約48萬平方呎零售及娛樂空間,集合超市、餐飲、時裝及家庭用品店,基本民生所需在區內已可滿足,毋須頻繁外出「過海掃貨」。隨著日出康城多期入伙,商場人流及商戶組合愈趨多元,由日常買餸、用餐以至消閒活動,都可足不出區在屋苑附近解決。區內另一賣點是充裕的綠化及休憩空間,日出康城規劃約有逾130萬平方呎綠化休憩用地,鄰近海濱長廊及將軍澳一帶戶外設施,適合跑步、踩單車及親子活動。未來政府亦計劃在將軍澳海旁增設水上活動設施,進一步提升海濱生活質素,令區內住戶可享更全面的康樂配套。 全港一手盤應有盡有
資料來源: House730
