紅磡新盤|悅麓新盤攻略懶人包(不斷更新)
由TKS Limited發展的紅磡高山道悅麓,屬單幢式住宅,提供83伙單位。戶型涵蓋開放式至兩房,實用面積166至304平方呎。
House730緊貼一手新盤行情,不斷更新悅麓價單分析、平面圖、示範單位及生活配套。由搵樓至買樓,House730一手包辦。
樓盤資料
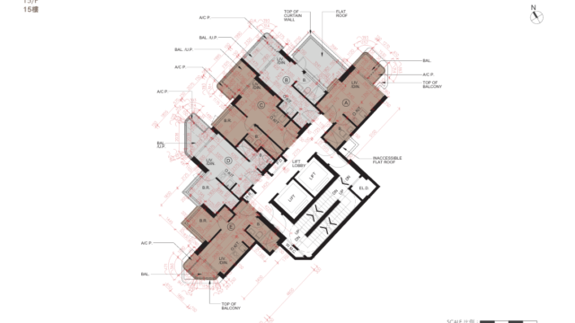
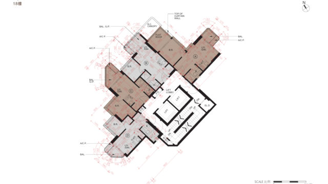
悅麓位於紅磡高山道26號,為單幢式住宅,現已落成入伙,合共提供83伙。住宅樓層分佈於5樓至25樓,間隔以開放式及一房單位為主。單位實用面積由166至304平方呎,分層住宅佔72伙;另設7伙連平台單位,實用面積介乎166至291平方呎,平台面積由47至364平方呎。不僅如此,項目另設4伙連天台單位,實用面積由252至288平方呎,天台面積介乎161至223平方呎,並設有露台及工作平台。
| 名稱: | 悅麓 |
| 所在地區 | 紅磡 |
| 中文地址: | 高山道26號 |
| 英文地址: | 26 Ko Shan |
| 大廈座數: | 1座 |
| 大廈層數: | 22層 |
| 單位總數: | 83伙 |
| 樓層高度: | 3.15至3.5米 |
| 實用面積: | 166至304方呎 |
| 單位間隔: | 開放式至1房 |
| 發展商: | TKS Limited |
| 管理公司: | 仲量聯行管理有限公司 |
| 關鍵日期: | 已落成 |
| 校網: | 35小學校網,中學為九龍城 |
價單
首張價單30伙,折實平均呎價約21,110元,以90天現金付款計劃最高10%折扣計算,折實平均呎價約18,999元,首批最平單位6樓A室,屬開放式單位,實用面積203方呎,折實價324.55萬元,折實呎價15,988元。
價單第2號,加推32伙。價單第2號涵蓋6伙開放式、24伙一房單位以及2伙連平台特色單位,實用面積166至304平方呎,折實售價349.93至659.55萬元,折實呎價17,238至25,688元;單位因景觀樓層不同以及部份為特色單位,個別單位加價約2至5%。
入場單位為7樓A單位,實用面積203平方呎,開放式間隔,折實售價349.93萬元,折實呎價17,238元;一房最低折實呎價的單位為7樓E單位,實用面積304平方呎,折實售價570.24萬元,折實呎價18,758元。
加推單位中,有2個連平台特色單位。5樓A單位實用面積為166平方呎,連同328平方呎平台,折實售價426.42萬元,折實呎價25,688元。 5樓B單位實用面積為245平方呎,連同113平方呎平台,折實售價629.35萬元,折實呎價25,688元。
平面圖










配套設施
悅麓位於紅磡高山道一帶,周邊民生配套成熟。鄰近高山道公園及高山劇場,提供綠化休憩空間及文化表演場地,適合住戶閒暇散步及欣賞文化節目。區內亦有海心公園、青州街遊樂場、佛光街遊樂場及體育館等設施,方便住戶進行休閒及運動活動。商場配套方面,附近有紅磡廣場及黃埔天地一帶的購物及餐飲區,提供超市、零售及多元餐飲選擇,日常消費相當方便;區內街市及民生商店林立,包括紅磡市政大廈街市及熟食中心,滿足不同生活所需。

交通配套
交通方面,由項目步行約數分鐘即可到達港鐵何文田站及土瓜灣站,連接多條路綫,往返港九新界均相對便捷;沿高山道、馬頭圍道及附近街道亦設有多條巴士及小巴路線,輕鬆往來各區。教育方面,項目位處小學第35校網及九龍城區中學校網,區內學校選擇較多。
全港新盤應有盡有
資料來源: House730
