山頂新盤|種植道1號新盤攻略懶人包(不斷更新)
由九龍倉持有,會德豐地產負責發展及銷售的山頂種植道1號,共分為三期發展,由20座洋房組成。第1期共有8座洋房,包括Plantation Boulevard 1至3號和5至9號洋房。House730幫你緊貼追蹤一手新盤行情,不斷更新種植道1號的價單分析、平面圖、示範單位、生活配套及同區樓盤比較。House730由搵樓至買樓,為你一手包辦。
樓盤資料
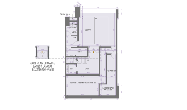
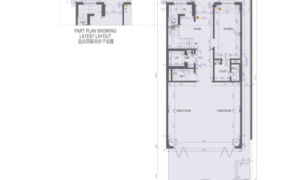
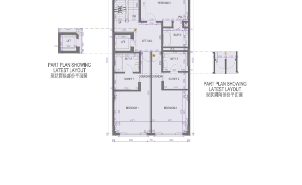
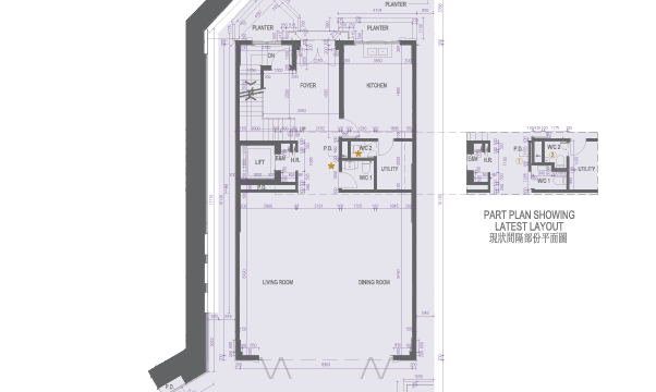
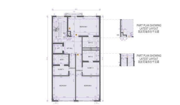
九龍倉發展的山頂種植道1號第1期,提供8座三層高獨立屋,包括地庫、地下、一樓及二樓,另外設有天台。每座獨立屋面積由5,513至6,122平方呎,間隔為四房,樓層高度由3米至4.325米,花園面積由747至4,460方呎,天台面積分別是53及56方呎,物業已屆現樓,並設有會所及泳池。
| 所在地區 | 山頂 |
| 中文地址: | 山頂種植道1號 |
| 英文地址: | 1 Plantation Road |
| 大廈座數: | 8座 |
| 大廈層數: | 3層 |
| 單位總數: | 8伙 |
| 樓層高度: | 3至4.325米 |
| 實用面積: | 5,513至6,122方呎 |
| 單位間隔: | 4房 |
| 發展商: | 九龍倉 |
| 管理公司: | 夏利文物業管理有限公司 |
| 關鍵日期: | 已落成 |
| 校網: | 11小學校網,中學為中西區 |
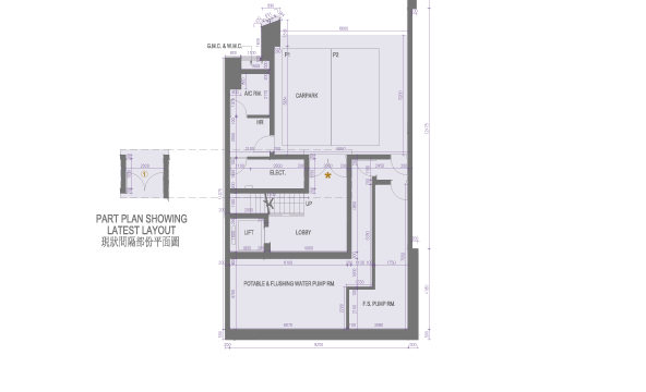
項目平面圖
洋房1至5號


















洋房6至9號
















































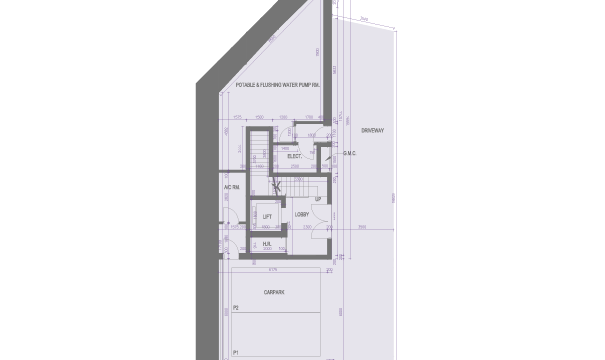
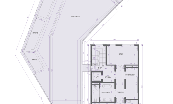
示範單位
1號洋房為連裝修的示範洋房,實用面積6,122平方呎,連花園4,460平方呎、庭院511平方呎及車庫1,139平方呎。8幢獨立屋外牆採用石材建造。屋內大部分空間設有地暖系統,提升舒適靜謐的居住環境。全屋Wi-Fi 覆蓋以及採用高品質濾水系統,每幢獨立屋引入空氣淨化系統。
生活配套
位於山頂傳統豪宅地段的種植道1號,附近有白加道、施勳道和普樂道,皆屬山頂的超級豪宅地段,同時位於霧線之下,能遠眺維港的海景及周邊的翠綠景致。種植道1號住客會所(The Tai Ping)由國際知名設計所Champalimaud Design設計,設施包括健身室、瑜伽區和迷你吧。從山頂廣場自駕前往,車程約3至5分鐘。山頂廣場內設有食肆、超市及零售商店,提供基本日常生活所需,並因不少遊客到訪而設有星級高端食肆。每座洋房設有私家車庫,住戶除了能自駕前往各區外,還有巴士及小巴路線來往山頂、灣仔、金鐘及中環等地區。




各區放盤應有盡有
資料來源: House730
