深水埗新盤|喜‧揚新盤攻略懶人包(不斷更新)

由喜雋發展的喜‧揚,位於深水埗鴨寮街93號,項目為單幢住宅,共83伙,實用面積介乎183至429平方呎,戶型包括開放式至兩房間隔。House730幫你緊貼一手新盤行情,不斷更新喜‧揚的價單分析、平面圖、示範單位、生活配套及同區樓盤比較。House730由搵樓至買樓為你一手包辦。
樓盤資料
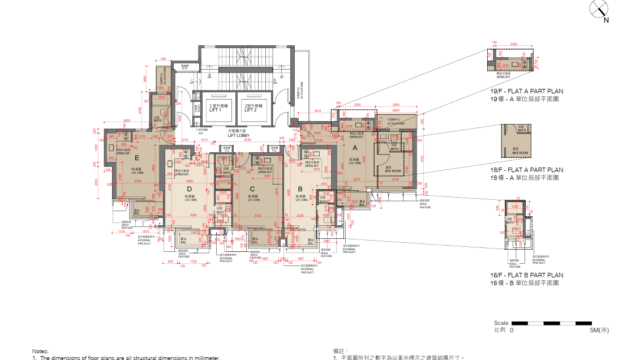
喜‧揚位於深水埗鴨寮街93號,建有1座住宅大廈,提供83個單位,5樓至25樓為住宅樓層,樓層高度介乎2.975米至4.225米,間隔包括開放式至兩房,實用面積183至429平方呎。其中,開放式單位佔50個,實用面積183至368平方呎;一房單位佔16個,實用面積274至297平方呎;一房連書房單位佔8個,實用面積305至322平方呎;兩房單位佔9個,實用面積391至429平方呎。大部分單位為開放式廚房,只有頂層25樓A室為獨立式廚房設計。頂層A及B室內設有專屬樓梯通往頂層,兩個單位分別設有158平方呎及103平方呎的平台,另各自設有290平方呎及260平方呎的天台。
| 名稱: | 喜‧ 揚 |
| 所在地區 | 深水埗 |
| 中文地址: | 鴨寮街93號 |
| 英文地址: | No. 93 Apliu Street |
| 大廈座數: | 1座 |
| 大廈層數: | 21層 |
| 單位總數: | 83伙 |
| 樓層高度: | 2.975米至4.225米 |
| 實用面積: | 183呎至429方呎 |
| 單位間隔: | 開放式至2房 |
| 發展商: | 喜雋發展 |
| 關鍵日期: | 已落成 |
| 校網: | 小學校網40,中學為深水埗區 |
即睇喜‧揚銷售詳情
項目平面圖






示範單位






生活配套
位於港鐵深水埗站與港鐵太子站之間的喜‧揚,步行約10分鐘可抵達港鐵站,前往各區都十分方便,5分鐘可到達旺角,20分鐘可到達中環,無論是前往中區上班,還是各區購物出遊,連接市區及其他地區都十分便利。加上深水埗屬於舊區,生活配套十分完善,滿足居民的日常需求。區內有多間大型超級市場、傳統街市及各類商店,提供新鮮食品及日常用品。此外,深水埗還有多個餐廳和小食店,選擇多樣。近年黃竹街一帶開設了很多咖啡店,有日系風格,亦有走居酒屋風格。區內亦有文化設施,如圖書館和社區中心。全港放盤應有盡有
資料來源: House730
