【揀樓攻略】Wetland Seasons Bay第3期平面圖分析 濕地公園景單位點揀好?

新地天水圍新盤Wetland Seasons Bay第3期已屆現樓,並將於下周開價,《地產站》現為大家分析Wetland Seasons Bay第3期的戶型,為一眾Wetland Seasons Bay第3期的準買家提供揀樓攻略!
Wetland Seasons Bay 第3期 新盤資訊
Wetland Seasons Bay坐落於天水圍濕地公園路1號,分3期發展,當中Wetland Seasons Bay第1期及第2期現已陸續入伙,而Wetland Seasons Bay第3期,發展商將之留待現樓才開售。Wetland Seasons Bay第3期設有兩座10層高的高座住宅大廈、兩座5層高的別墅及7幢3層高的洋房,合共提供384伙,實用面積由268至1,895平方呎。此外,Wetland Seasons Bay第3期亦為最就近輕鐵濕地公園站、過海巴士站及行人天橋的期數,位置為Wetland Seasons Bay各期之中最方便。
[點擊睇睇Wetland Seasons Bay第3期高座大廈及別墅平面圖]
各座景觀
先分析Wetland Seasons Bay第3期各座景觀,兩座別墅及7幢洋房最前臨濕地,故其景觀亦最開揚。至於Wetland Seasons Bay第3期兩座高座住宅均呈L形設計,並以6B座的單位較為前臨濕地公園景,而6A座只有A1室及C6室可外望開揚的濕地公園景,亦可外望泳池景。
Wetland Seasons Bay第3期的高座單位均會以不同英文字母將同一座向的單位排列,當中6A座「A」字頭單位主要外望6B座樓景,而「B」字頭及「C」字頭單位分別外望濕地公園路街景,以及內園泳池及會所景。至於Wetland Seasons Bay第3期的6B座,「B」字頭單位若位處5樓或以上,可享開闊的濕地公園景觀,而「A」字頭則望向6A座樓景。至於「C」字頭單位則望向濕地公園路街景,以及同系屋苑Wetland Seasons Park樓景。
高座單位
Wetland Seasons Bay第3期的高座單位,備有普通分層戶、低層連平台及頂層連天台3款,間隔介乎開放式至3房套連儲物室及3廁。Wetland Seasons Bay第3期所有高座單位一律設有露台及開放式廚房;而單位的儲物室均設窗戶,有助採光及通風。值得注意的是,露台以落地玻璃外推摺門連接客廳,故
開放式及1房
Wetland Seasons Bay第3期的開放式單位僅見於6A座C1室,實用面積268平方呎,入門設有玄關,分別設有浴室及開放式廚房,對面亦有預留位置安放鞋櫃,為Wetland Seasons Bay第3期全盤最細的單位。至於1房可分為純1房及1房連儲物室兩種,當中前者位於6B座A5室,實用面積314平方呎,大門兩旁分別為開放式廚房及儲物室,大廳及房間同向,間隔亦四正,方便安放傢俬;1房連儲物室單位則分布於6A座B7室、6A座2至9樓B1室,實用面積均為356平方呎,而且廳房同向。
2房
Wetland Seasons Bay第3期的2房單位可分為純2房及2房連儲物室兩種。當中純2房單位均為廳房同向設計,但房間的分布方法可分為兩種,其中一種如6A座A9室,兩間睡房均由走廊連接;另一種則像6B座A3室及C1室,兩間睡房分布於客廳左右,省卻走廊位,惟構成「四門歸心」格局。當中5款純2房單位的主人房外連工作平台,分別為6A座A5至A7室、C2、C3及C6室,以及6B座A3、A7、A8、C1及C2室。至於2房連儲物室單位,兩間睡房分布客廳兩邊,而儲物室均比鄰主人房,呈長方形,方便布局。
高座特色戶
Wetland Seasons Bay第3期的高座特色戶可分為低層連平台及頂層連天台兩種,分別有26伙及34伙。當中平台最大的單位為6A座1樓A1室,實用面積470平方呎,3房間隔,外連平台面積達368平方呎。連天台單位方面,Wetland Seasons Bay第3期只有3伙自設內置樓梯,由客廳外連的平台通往天台,分別為6A座10樓B1室、6B座10樓B1室及C1室。當中6B座10樓B1室,實用面積1,031平方呎,設4房套及工作間連廁,內設梗廚,外連150平方呎平台及610平方呎天台,為面積最大的高座分層單位。
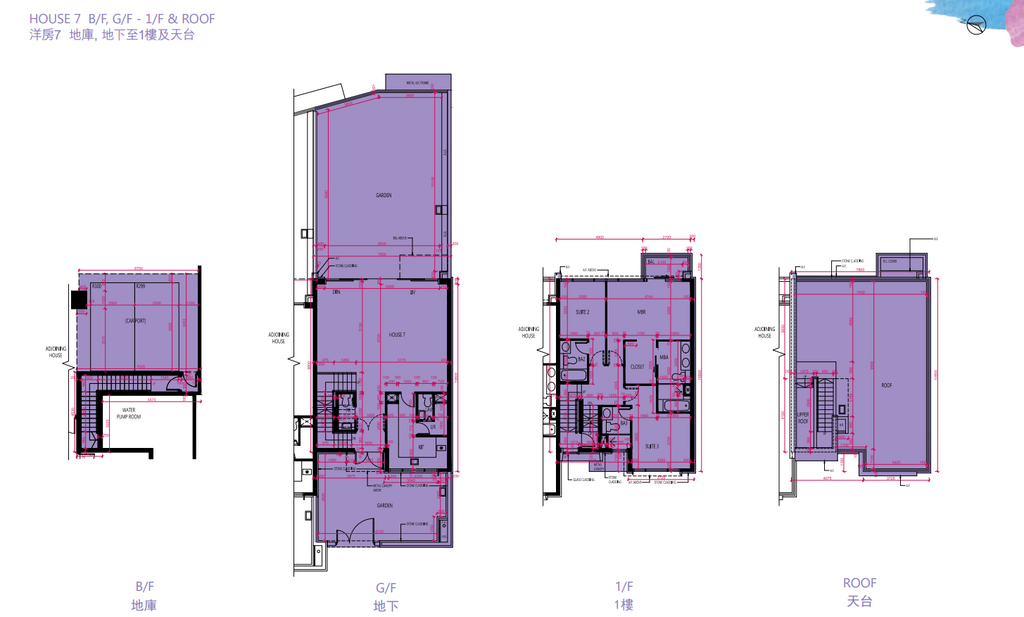
別墅單位及洋房
Wetland Seasons Bay第3期設有兩座別墅—WV10及WV11,每幢3層高,單位規格均相同,實用面積介乎757至1,158平方呎,間隔由3房1套至5房雙套,全設梗廚及工作間連廁。面積最大者為WV10及WV11的地下A室,實用面積1,158平方呎,設5房雙套及工作間連廁,並外連613平方呎花園,可同時連接客廳及主人套房。至於6幢洋房一律3層高,設3套房及工作間連廁,主人套房設衣帽間;另於地下客廳的樓梯底設有廁格,外連花園及天台,地庫車庫可泊兩車。






















