旺角Larchwood上載樓書供187伙 主打開放式戶

宏安地產(01243)旗下位於旺角Larchwood,周五(19日)晚上上載售樓說明書至項目官方網站。項目為單幢盤,為一座樓高24層的住宅大樓,提供187伙,以開放式戶為主打,最細的特色戶由181方呎起。
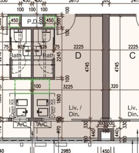
據樓書顯示,項目單位的實用面積由181至413方呎,標準戶型涵蓋開放式戶及一房戶。標準戶的樓層每層設9伙,提供兩部升降機。當中,全盤面積最細及最大的單位均屬特色戶,最細單位為3樓D室,採開放式間隔,實用面積181方呎,連26方呎平台。而全盤面積最大的單位為27樓G室,實用面積413方呎,連377方呎天台,兩房間隔。
其他配套方面,項目不設停車位。整體佈局上,項目的地下及1樓為商舖,2樓設有621方呎的住客會所,3樓及以上樓層為住宅。樓盤預計關鍵日期為2024年4月30日。
