長實鳳園地皮申建5幢住宅大廈 涉1462伙
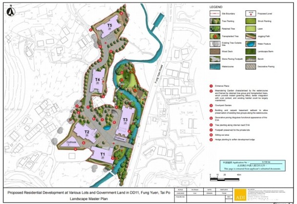
該地皮為大埔市地段第183號A分段第1小分段(部分)及丈量約份第11約多幅地段和毗連政府土地,坐落於嵐山以南,申請以地積比率5倍發展。該地盤面積約149,837方呎,將興建5幢樓高28層至29層的住宅大廈,總樓面面積約749,188方呎,提供1,462個住宅單位。
該項目同時申請興建2幢樓高3層的獨立會所,面積不多於29,967方呎。項目提供196個私家車位及15個電單車位。
該項目申請人為Fantastic State Limited。據公司註冊處資料,該公司董事包括趙國雄及吳佳慶等。該批董事為長實集團高層人員。
申請人指出,上述申請項目地鄰近已發展的地區,並且能在最短時間內帶內帶來房屋發展,同時並不會令「綜合發展區」地帶內剩餘個別土地擁有人的利益和發展權受損。此外,由於申請地點擁有各類公共交通服務連接至大埔墟站,以及道路、排水和污水基礎設施的配套,故此用作發展住宅是合理及適當。
資料顯示,大埔分區計劃大綱核准圖內,綜合發展區的住宅發展項目最高住用地積比率以0.64倍為限。
而同樣由長實集團興建的住宅項目大埔嵐山,於十多年前向城規會申請,當時整個綜合發展區項目佔地約197.73萬方呎,地積比率0.64倍,興建8幢最高28層的分層住宅,樓面達120.68萬方呎。當時設有建築限制,項目九成地盤面積不能建高於1層。
寶庭重建發展則就屯門藍地福亨村里「蚊型」住宅地,向城規會申請以地積比率0.54倍發展15幢三層高、並以兩排連屋佈局的住宅,總樓面面積約10,159方呎,提供15個單位。以此計算,每幢住宅面積約677方呎,而每層面積則為約225.7方呎。
該項目另設有2幢兩層高的非住宅大廈,樓面面積約1,006方呎。項目提供25個私家車位。
資料顯示,該公司於去年10月份以以8,319萬元投得上述地皮,每方呎樓面地價約8,188元。


